icon of park model

Four Season Living with Two Bed, One Bath

🚨 New Listing 🚨

‼️Year Round Community Living‼️

👉Modular Home👈

🔥 Hot Price 🔥

💥 Mortgages Available 💥

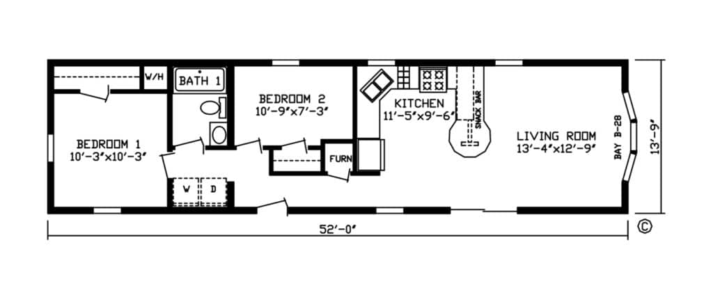
Check out this new listing at Twin Springs Cottage Condo Community, located between Brantford and Woodstock and 35 minutes from Hamilton. This two bedroom Modular Home offers 715 sq’ feet of living space, comes with appliances, furnace, washer/dryer prep, and is move in ready! 

Lot fees $650/month includes: water, sewer, mail delivery, garbage pickup, snow removal, land taxes, use of amenities, access to all events and activities. 

Amenities include but not limited to:

Sand Beach 

Laundry Facilities 

Community Hall

Euchre Nights

Ceramic Nights 

Pool & Dart Night

Christmas is July

Halloween in August 

Firework on holidays 

dog park

community garden

Fishing derby

And much, much more.

🚨 Price: $240,000. Mortgages available OAC with 5% down over 25 years. Interest rate 4.29% 🚨

Contact Bryan at 905-329-2003 or Jeff at 905-220-7695 with questions, or to book a tour!

$ 240,000.00

Located in Twin Springs Cottage Condo Community

Specifications

Year

2025

Stock Number

Status

Pre-Owned

Make

Fairmont Homes

Model

Huron

Slide Out(s)

0

Sleeps

4

Length

52

No video available


About Twin Springs Cottage Condo Community